Perfect "Mini-cation", Sleeps 4, Kitchenette, Deck/GasGrill, Big Yard, Kids/Pets | Apartment in Newport
1 Bedroom Apartment in Fifth Ward, Newport
Enjoy a great "Mini-cation" in Newport. Just relax and pretend you are home (except someone else mowed your lawn, cleaned your kitchen, made your beds, and baked a fresh banana bread for you)! Hawthorne House of Newport is located in the city's south end in a quiet residential area historically known as 'Fifth Ward'. This 3-room suite is situated in a walkable "sweet spot" halfway between the beach and downtown. We are celebrating our 31st year in 2026!
We accept only one reservation at a time, so there are never any other guests on the property. Guests will have full and private access to the suite – indeed, our reviews speak well of our careful attention to guest privacy.
A big back yard for children and doggies to run and play (even a swing set for the little ones), a private deck with a gas grill . . . and off-street parking! There is a great park (also dog-friendly) across the street and a family-friendly beach down the road.
Note that all short-term rental properties in Newport's residential zones must be owner-occupied (as per decades of city ordinances). That said, our property was specifically designed to give separate privacy to guests. In fact, this suite is the only guest space in the building or on the property – thus, it is private for you and is never shared with other guests or with the owners.
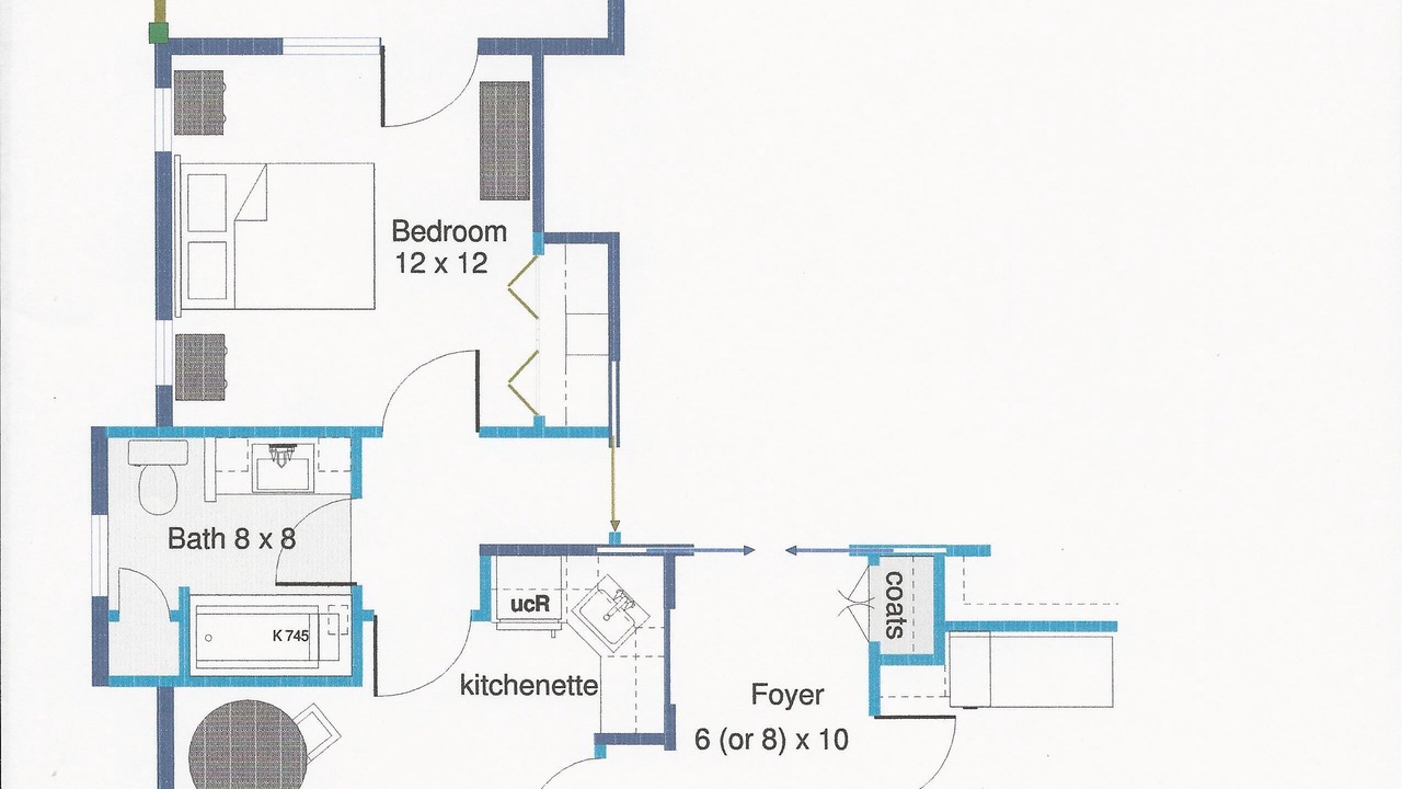
The suite's separate entry is just off the main foyer of the home. Nicely furnished and equipped, the suite includes a deck with gas grill, well-supplied kitchenette, free Wi-Fi, and off-street parking. (We have never charged fees for cleaning, wi-fi, parking, or other such amenities to our guests!) The suite sleeps four (a queen bedroom and a separate living/dining room with queen sleeper sofa – we can also provide a pack 'n play). The recently renovated bath is accessed from the hallway between the living room and bedroom, thus, convenient to both main areas of the suite.
This neighborhood is within walking distance to four nice parks all of them dog-friendly (Murphy Field, Ballard Park, Morton Park, and King's Park), as well as a family-friendly beach (Gooseberry Beach). We are also within walking distance to downtown heading north – and to the Breaker’s Mansion and Cliff Walk heading east. You can easily access Newport's dining, shopping, and the area’s famous attractions!
Children will feel especially welcome and comfortable. They will be delighted to find a large family yard perfect for running and playing – as well as a swing set (with sliding board and fort) and outdoor toys. The nearby parks (three with playgrounds) and family-friendly beach are noted above.
This home was built using the concept of universal design. It is accessible for most wheelchairs; please ask us for specifics. Well-behaved doggies welcome; please ask for our 'Pet Policy'. Among the many thoughtful conveniences, your suite also includes free off-street parking in the driveway (space for two guest cars). Oh, did we mention your helpful hosts? Feel free to ask us for shopping, dining, or sightseeing suggestions. As native Newporters, we are well acquainted with our famous hometown and its surrounding areas.
LOCATION: We are within walking distance to central downtown (1.2 miles), a private family beach (0.6 miles), Salve Regina campus (0.5 miles), Breakers Mansion (0.9 miles), and Cliff Walk (1.0 miles). We are 1.3 miles from Fort Adams State Park. This is a great central location.
Wheelchair / Other Mobility Needs: For most guests with mobility needs (walkers, canes, standard-sized manual wheelchairs, etc.) or for those who can easily stand and pivot to transfer, this suite should prove accommodating. Possibly not suitable for power wheelchair users – please call us for specifics. We are, of course, happy to move (or remove) furnishings or scatter rugs as per your requirements. Floor plan (with measurements) available.
Perfect "Mini-cation", Sleeps 4, Kitchenette, Deck/GasGrill, Big Yard, Kids/Pets is located in Fifth Ward. Perfect "Mini-cation", Sleeps 4, Kitchenette, Deck/GasGrill, Big Yard, Kids/Pets provides accommodation, featuring TV, Balcony/Terrace, Wellness Facilities, among other amenities. This Apartment features TV, Balcony/Terrace, Wellness Facilities, to make your stay a comfortable one.
Perfect "Mini-cation", Sleeps 4, Kitchenette, Deck/GasGrill, Big Yard, Kids/Pets has 1 Bedroom , 1 Bathroom, and max occupancy of 4 people. The minimum rental for this property is 1 nights, but this can change depending on the season you plan on staying. Previous guests have given good rated it, and VRBO labeled it a top-rated Apartment because of the excellent services rendered by the owner or manager of this Apartment, and has consistently provided great experiences for their guests. Most families or guests that use it recommend it to their friends and some of them are repeat guests. Apartment has a friendly neighborhood, and the Fifth Ward has interesting places to visit. If you want to learn more about the Apartment in Fifth Ward, such as places to visit and things to do nearby, you can check below to learn more.
Amenities
Policies
Extra-person charges may apply and vary depending on property policy government-issued photo identification and a credit card, debit card, or cash deposit may be required at check-in for incidental charges host has indicated there is a carbon monoxide detector on the property host has indicated there is a smoke detector on the property onsite parties or group events are strictly prohibited property registration number 12/04/2025, re.01641-str safety features at this property include a fire extinguisher, a first aid kit, and a deadbolt lock special requests are subject to availability upon check-in and may incur additional charges; special requests cannot be guaranteed this property is managed through our partner, vrbo. you will receive an email from vrbo with a link to a vrbo account, where you can change or cancel your reservation
Reviews
FAQ's
Is this Fifth Ward apartment pet-friendly for guests?
Yes, pets are allowed at this property. Check the guest reviews to learn what guests had to share.
Does the Fifth Ward apartment have a swimming pool?
No, this Fifth Ward apartment does not have a swimming pool. Check the Facility Overview section for details about the pool and other available facilities.
How much does it cost per night to stay in Fifth Ward apartment?
Best-rates for the Fifth Ward apartment starts from $232 per night with includes Child Friendly, Internet, Parking, Security/Safety, Fireplace/Heating, TV, Balcony/Terrace, Wellness Facilities, Barbecue/Outdoor Cooking, Kitchen, Laundry, Air Conditioner, Accessibility, Sports/Activities, Bedding/Linens, Breakfast, Pet Friendly, View, Ocean View, Oceanfront with all other facilities. matches every traveler with their perfect accommodation, whether you are traveling with a group, friends, family, or pets.
Is Fifth Ward apartment a family-friendly place to stay?
Based on the information we have received from the owner or our partner, this is considered to be a family-friendly property. Families have rated this apartment Good or guests have recommended them suitable for families. As reported by the owner or manager, the apartment has specified that children are welcome. Please see details about suitability for your family or inquire with the property to learn more.
Is the Fifth Ward apartment wheelchair accessible or offer services for disabled guests?
Based on the information received from our partner, the Fifth Ward apartment has not specified they are wheelchair accessible. Likewise, there is not an elevator specified as being available at the property. Specific accessibility details may be addressed in the property details section of this page.
What is the minimum night stay policy for the Fifth Ward apartment?
Based on the information reported by the owner or manager, the Fifth Ward apartment indicates 1 day stay policy at this apartment. Guests are cautioned that the minimum stay policy may differ based on seasonality or availability and may be at the discretion of the owner or manager.
What cancellation policy is in place for Fifth Ward apartment?
Guests are cautioned that the cancellation policy may differ based on seasonality, availability, or current travel restrictions. Guests should also be aware that this policy may be subject to change and should be confirmed prior to booking. More details may be available on this page in the property description. However, early check-in or late check-out can sometimes be negotiated between the guest and the owner or the manager of this property.
